お電話でのお問い合わせ
お電話
受付時間
10:00〜18:00 (定休日/火・水曜日)
TEL : 0120-721-726
価格1,400万円
受付時間
10:00〜18:00 (定休日/火・水曜日)
ポイント!
エルエルタウン・ロピアすぐ側で買い物環境◎
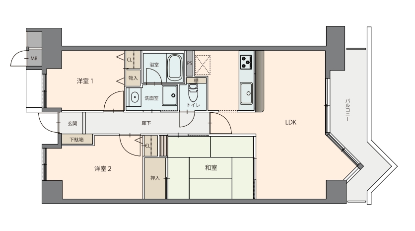
リビング続き和室は客間としても利用可能です。
ペット飼育可(細則有)
南向きバルコニーで日当たり良好です♪
イオンモール岡崎まで車で10分の好立地

.jpeg)

.jpg)







| 物件名 | サンシティウエストパーク天白 | 価格 | 1,400万円 |
| 所在地 | 岡崎市天白町字西池2番地9 | 交通 | 愛知環状鉄道 六名駅 徒歩15分 JR東海道本線・愛知環状鉄道 岡崎駅 徒歩23分 |
| 建物面積 | 73.81㎡(22.33坪) バルコニー面積10.06㎡(3.04坪) | 土地面積 | - |
| 築年月(築年数) | 1993年2月(33年) | 間取り | 3LDK |
| 間取り備考 | - | 備考 | ※特別徴収金有(2032年7月までの期間限定):月額780円 |
城南小学校
約1300m 徒歩約17分
南中学校
約2400m 自転車約10分
六名南保育園
約1200m 徒歩約15分
みやこ第二幼稚園
約660m 徒歩約9分
エルエルタウン
約240m 徒歩約3分
イオンモール岡崎
約2600m 車約10分
業務スーパー岡崎店
約1700m 車約8分
いしかわ内科クリニック
約670m 徒歩約9分
| 物件名 | サンシティウエストパーク天白 | 価格 | 1,400万円 |
| 所在地 | 岡崎市天白町字西池2番地9 | 交通 | 愛知環状鉄道 六名駅 徒歩15分 JR東海道本線・愛知環状鉄道 岡崎駅 徒歩23分 |
| 建物面積 | 73.81㎡(22.33坪) バルコニー面積10.06㎡(3.04坪) | 土地面積 | - |
| 築年月(築年数) | 1993年2月(33年) | 間取り | 3LDK |
| 間取り備考 | - | 備考 | ※特別徴収金有(2032年7月までの期間限定):月額780円 |
| 建ぺい率/容積率 | 60% / 200% | 用途地域 | 準住居地域 |
| 都市計画 | 市街化区域 | 地目 | 宅地 |
| 土地権利 | 所有権 | 構造 | 鉄筋コンクリート造 |
| 引渡可能時期 | 相談 | 現況 | 空室 |
| 取引態様 | 媒介 | 物件番号 | - |
| 情報更新日 | 2026年3月28日 |
| 総戸数 | 109戸 | その他面積 | - |
| 所在階/階建 | 2階 / 11階建 | 管理形態 | 全部委託 (日勤) |
| 管理費(月額・円) | 8,100円 / 月 | 修繕積立金(月額・円) | 11,810円 / 月 |
| 駐車場(月額・円) | - | インターネットに関わる費用(月額・円) | - |