お電話でのお問い合わせ
お電話
受付時間
10:00〜18:00 (定休日/火・水曜日)
TEL : 0120-721-726
価格1,480万円
受付時間
10:00〜18:00 (定休日/火・水曜日)
ポイント!
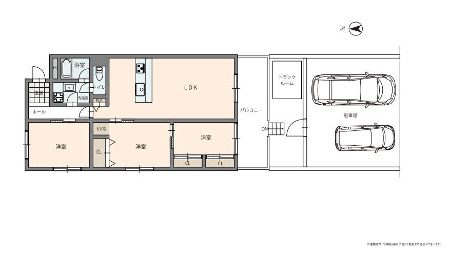
・物件の前に駐車2台可!カーポート付き!駐車場からそのまま室内にアクセスできます!
・角部屋&南向きのため日当たり良好!
・桜並木がある川沿いのため、心地の良い景色と風を感じられます!






②.jpg)
.jpg)
| 物件名 | シャンポール富士 | 価格 | 1,480万円 |
| 所在地 | 岡崎市伊賀町字七丁目111番地2 | 交通 | 愛知環状鉄道「北岡崎」駅 約1,181m 徒歩約15分 |
| 建物面積 | 63.94㎡(19.34坪) | 土地面積 | - |
| 築年月(築年数) | 1979年3月(47年) | 間取り | 3LDK |
| 間取り備考 | - | 備考 | 壁紙、フローリング、キッチン、ユニットバス交換済み 駐車場:敷地内2台付(6,000円/年) |
岡崎市立広幡小学校
約650m 徒歩約9分
岡崎市立葵中学校
約800m 徒歩約10分
セブンイレブン岡崎井田町店
約350m 徒歩約5分
アオキスーパー伊賀店
約550m 徒歩約7分
ココカラファイン岡崎伊賀店
約500m 徒歩約7分
岡崎伊賀郵便局
約450m 徒歩6分
| 物件名 | シャンポール富士 | 価格 | 1,480万円 |
| 所在地 | 岡崎市伊賀町字七丁目111番地2 | 交通 | 愛知環状鉄道「北岡崎」駅 約1,181m 徒歩約15分 |
| 建物面積 | 63.94㎡(19.34坪) | 土地面積 | - |
| 築年月(築年数) | 1979年3月(47年) | 間取り | 3LDK |
| 間取り備考 | - | 備考 | 壁紙、フローリング、キッチン、ユニットバス交換済み 駐車場:敷地内2台付(6,000円/年) |
| 建ぺい率/容積率 | - | 用途地域 | 準工業地域 |
| 都市計画 | - | 地目 | 宅地 |
| 土地権利 | 所有権 | 構造 | RC造 |
| 引渡可能時期 | 相談 | 現況 | 空家 |
| 取引態様 | 媒介 | 物件番号 | - |
| 情報更新日 | 2026年5月2日 |
| 総戸数 | 24戸戸 | その他面積 | - |
| 所在階/階建 | 1階 / 6階建 | 管理形態 | 自主管理(不在) |
| 管理費(月額・円) | 6,000円 / 月 | 修繕積立金(月額・円) | 5,000円 / 月 |
| 駐車場(月額・円) | - | インターネットに関わる費用(月額・円) | - |