お電話でのお問い合わせ
お電話
受付時間
10:00〜18:00 (定休日/火・水曜日)
TEL : 0120-721-726
価格3,980万円
受付時間
10:00〜18:00 (定休日/火・水曜日)
ポイント!
~おすすめポイント~
① 春先の丘近接エリアの住環境
② カーポート付駐車2台で使い勝手良好
③ 太陽光発電搭載の築浅戸建
ファミリー層に人気の春先の丘に近接するエリアに位置する、築浅戸建のご紹介です。
落ち着いた住環境に加え、子育て世帯にも適したエリアとなっています。
駐車場はカーポート付きで2台分確保しており、雨の日の乗り降りやお車の保護にも配慮されています。
また、太陽光発電システムを搭載しており、日々のランニングコストを抑えられる点も魅力です。
築浅ならではの設備・状態の良さもポイントで、実際の住み心地をイメージしやすい物件です。
















| 物件名 | 岡崎市若松町字萱林 | 価格 | 3,980万円 |
| 所在地 | 岡崎市若松町字萱林 | 交通 | JR東海道線・愛知環状鉄道「岡崎」駅 徒歩18分 名鉄バス29系統「若松栄町」停 徒歩5分(岡崎駅まで 乗車4分) |
| 建物面積 | 104.33㎡(31.56坪) | 土地面積 | 134.97㎡(40.83坪) |
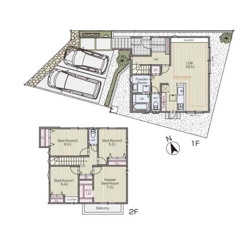
| 築年月(築年数) | 2019年10月(6年) | 間取り | 4LDK |
| 間取り備考 | - | 備考 | ■長期優良住宅 ■省令準耐火構造 ■耐震等級3 ■省エネ等級4 ■太陽光パネル6.6kw ■省エネ給湯器エコジョーズ ■浴室暖房乾燥機 ■LD床暖房付 ■キッチン背面収納 ■1階電動シャッター ■玄関タッチキー |
ショッピングモールレスパ
883m 徒歩12分
セブンイレブン岡崎若松町店
768m 徒歩10分
スギ薬局上地店
890m 徒歩12分
岡崎市立翔南中学校
439m 徒歩6分
岡崎市立岡崎小学校
1116m 徒歩14分
岡崎市若松保育園
726m 徒歩13分
| 物件名 | 岡崎市若松町字萱林 | 価格 | 3,980万円 |
| 所在地 | 岡崎市若松町字萱林 | 交通 | JR東海道線・愛知環状鉄道「岡崎」駅 徒歩18分 名鉄バス29系統「若松栄町」停 徒歩5分(岡崎駅まで 乗車4分) |
| 建物面積 | 104.33㎡(31.56坪) | 土地面積 | 134.97㎡(40.83坪) |
| 築年月(築年数) | 2019年10月(6年) | 間取り | 4LDK |
| 間取り備考 | - | 備考 | ■長期優良住宅 ■省令準耐火構造 ■耐震等級3 ■省エネ等級4 ■太陽光パネル6.6kw ■省エネ給湯器エコジョーズ ■浴室暖房乾燥機 ■LD床暖房付 ■キッチン背面収納 ■1階電動シャッター ■玄関タッチキー |
| 建ぺい率/容積率 | 60% / 200% | 用途地域 | 第一種住居地域 |
| 都市計画 | 市街化区域 | 地目 | 宅地 |
| 土地権利 | 所有権 | 構造 | 木造2階建 |
| 引渡可能時期 | 相談 | 現況 | 居住中 |
| 取引態様 | 媒介 | 物件番号 | - |
| 情報更新日 | 2026年4月27日 |
| 販売戸数 | 1個 | バス・トイレ | トイレ2か所あり |
| キッチン | システムキッチン | 設備・サービス | - |
| 瑕疵保証 | - | 瑕疵保険 | - |
| 評価・証明書 | - | 建築確認番号 | - |